熟料散裝機
丁寶勤 13906276368(技術)
電話:0513-88400999 傳真:0513-88400998 郵箱:jszk@vip.163.com


一、熟料散裝機概述:
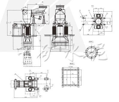
江蘇中礦生產的熟料散裝機是從庫內將熟料(≤50mm)自動輸送到熟料散裝車船的設備。庫底水泥熟料散裝設備主要由手動棒閥,電動扇形閥,卷揚裝置,伸縮卸料裝置、收塵軟管,電容式限位開關,電控系統等部分組成。用戶也可選用庫側熟料散裝設備。

二、技術參數表:
技術性能 | 技術參數 |
輸送物料 | 水泥熟料或類似塊狀物料 |
物料容重 | 熟料1.45t/m3 |
物料溫度 | <=80℃ |
物料粒度 | <=50(mm) |
裝車能力 | 200t/h |
卸料頭伸縮距離 | 根據用戶要求定制 |
手動棒閥 | 790x790mm 410x410mm |
電動扇形閥 | DZG1103 2x1.1KW |
氣動棒閥 | DTY700-400/100 1.5KW(氣缸:QGB125x400-MP4) |
卷揚機 | CD1-18D 功率:3KW 升降速度:8m/s |
電容式限位開關 | FTC131探頭規格:探頭直徑ф25x400 工作壓力10bar 工作溫度-20℃-80℃ FTM131探頭規格:探頭直徑ф20x230 加長170mm 工作壓力10bar |
裝機功率 | ~5.2Kw ~4.5Kw(~3KW) |
參照圖 | SZT300-Ⅰ/1、SZT300-Ⅱ/2、SSQ300-Ⅲ |
機型 | 庫底、庫底、庫側 |
工作原理:
當運輸工具進入位置后,打開棒閥相應的棒條數量。按住控制柜的“下降鈕”,下料頭到位后會自動斷開升降電機電源,按“裝車鈕”進入御料狀態,輔助配套設備會相應開始工作,卸料產生的灰塵通過進料斗,由伸縮收塵軟管進入收塵器凈化,當下料頭的物料裝滿時,下料頭邊上升,邊報警,上升距離要在裝料前設置。若上升距1米,則將時間繼電器的時間調為T=1/V。在上升過程中裝料始終在進行,當下料頭滿時,再重復上述動作,到達料滿位置后,按停車鈕,使電振機反制動,或關閉扇形閥下料停止工作,其它設備相應停止工作。停車后可按上升按鈕讓下料斗離開物料一定距離,確保運輸工具的移動,再對準第二個卸料工位。直到整個料倉裝滿為止。
SZT300-Ⅰ/1熟料散裝機技術參數及示意圖


SZT300-Ⅰ/2熟料散裝機示意圖

SZT300-Ⅱ熟料散裝機示意圖
















