TPO 蝶閥
丁寶勤 13906276368(技術)
電話:0513-88400999 傳真:0513-88400998 郵箱:jszk@vip.163.com

TPO 系列蝶閥供水泥工業或其他工業為工藝設計時采用,有TPO-13、TPO-14系列,規格符合天津水泥工業設計院編印的“水泥工藝設計手冊”的要求。TPO 蝶閥普遍適用于建材、玻璃、礦山、電力、輕工、造紙等行業的通風、環保工程等管道系統中。 對管道中氣體介質按不同需要調節流量大小和切斷 。
結構特點:
TPO 蝶閥 ,采用鋼材焊接。具有重量輕、結構合理、耐磨損、流阻損失小、操作靈活、指示方位明確、維護方便、使用壽命長等優點。可實現任意角度安裝。配用手動拉桿,開關輕松自如 , 任意調節閥門開度 , 是調節流量的理想設備。
結構特點:
TPO 蝶閥 ,采用鋼材焊接。具有重量輕、結構合理、耐磨損、流阻損失小、操作靈活、指示方位明確、維護方便、使用壽命長等優點。可實現任意角度安裝。配用手動拉桿,開關輕松自如 , 任意調節閥門開度 , 是調節流量的理想設備。
性能參數:
公稱壓力 | 介質流速 | 泄漏率 | 適用溫度 | 適用介質 |
0.05MPa | ≤ 25 m/s | ≤ 1.5% | ≤ 300℃ | 空氣、煙氣、粉塵氣體等 |
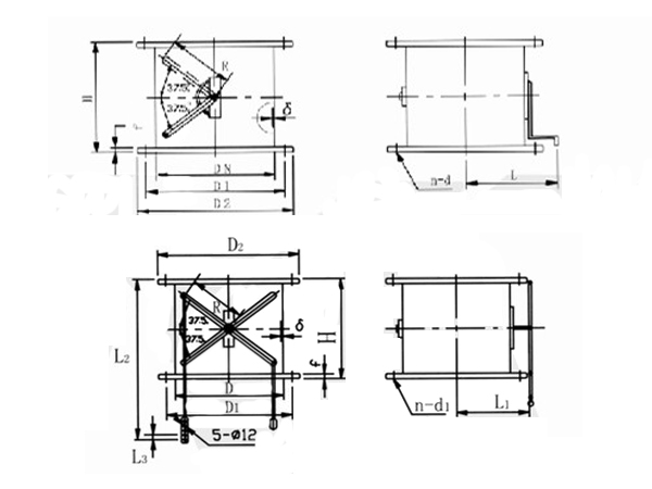
TPO---13 外形圖:

TPO---13 外形連接尺寸 :

TPO---14 外形圖:

TPO---14 外形連接尺寸 :

上一頁:Swb型手動蝶閥
下一頁:手動百葉圓式(窗式)閥
產品關鍵詞:TPO 蝶閥










